- Bathroom And Kitchen Renovation With City Permit Drawings At California
Project Scope
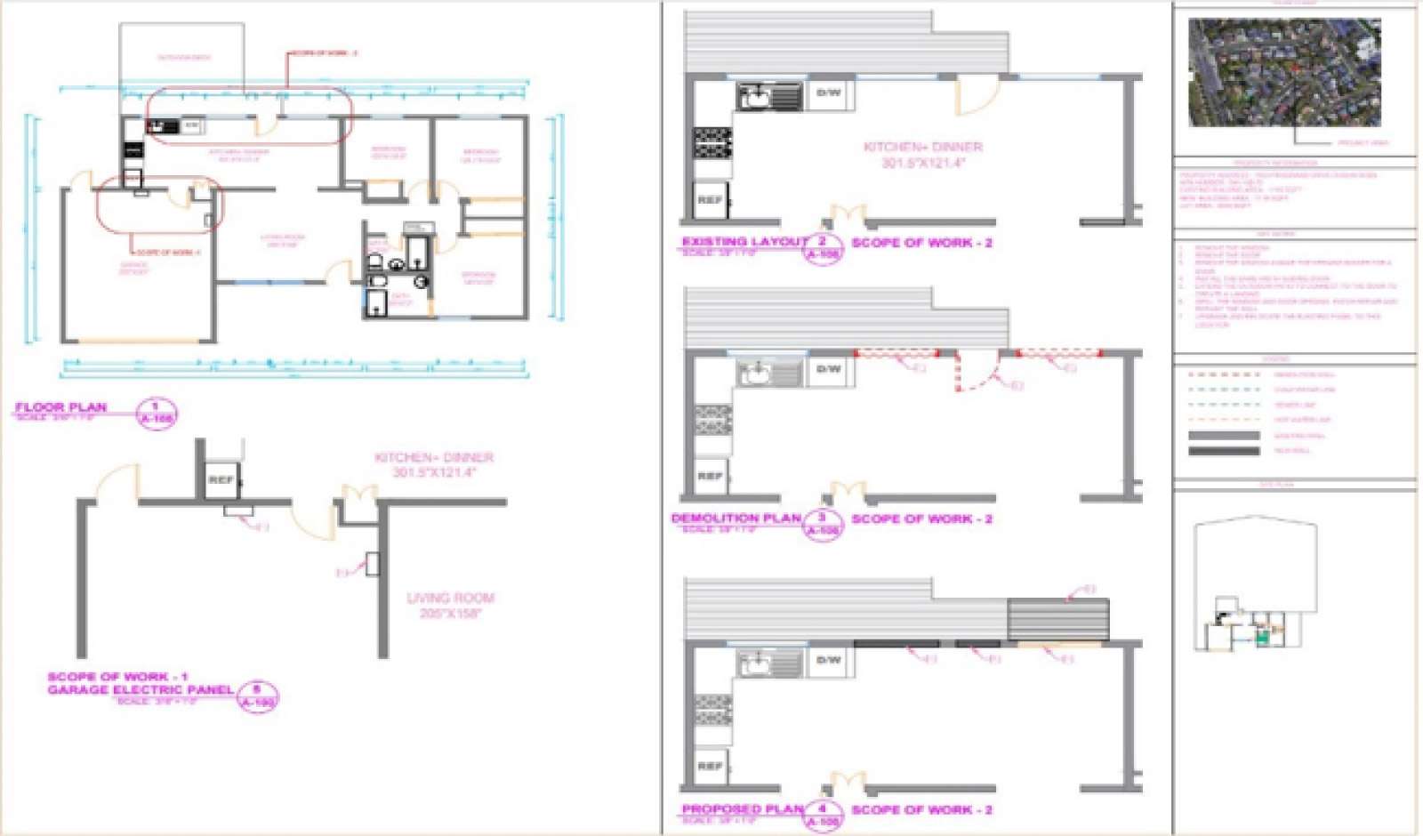
The client requested a renovation of their bathroom and kitchen, aiming for improved usability and style. Additionally, city permit drawings were required to move forward with construction.
Khodiyar eSolutions
- Existing Model and Site Layout Preparation: Our team began by developing an accurate model of the current house structure and preparing a detailed site layout.
- Design Options Development: Based on the client’s requirements, we created 3 architectural design options tailored to their vision for the bathroom and kitchen.
- Client Presentation and Discussion: We held a meeting with the client to review each design option in detail, addressing questions and discussing potential adjustments.
- Design Revisions: After receiving the client’s feedback, we refined the selected design to better meet their needs.
- Final Submission: The final, improved design was submitted to the client, complete with permit-ready drawings for city approval.
Benefits to Customers
- Improved Functionality: The new designs maximize comfort and usability.
- Tailored Options: The client was able to choose from three personalized design options.
- Efficient Permit Process: Code-compliant drawings facilitated a smoother city approval.
- Collaborative Approach: Client feedback ensured the design aligned with their vision.
- Increased Property Value: Renovations to key areas like the bathroom and kitchen enhanced market appeal.
