- Residential House Renovation Project In California
Project Scope
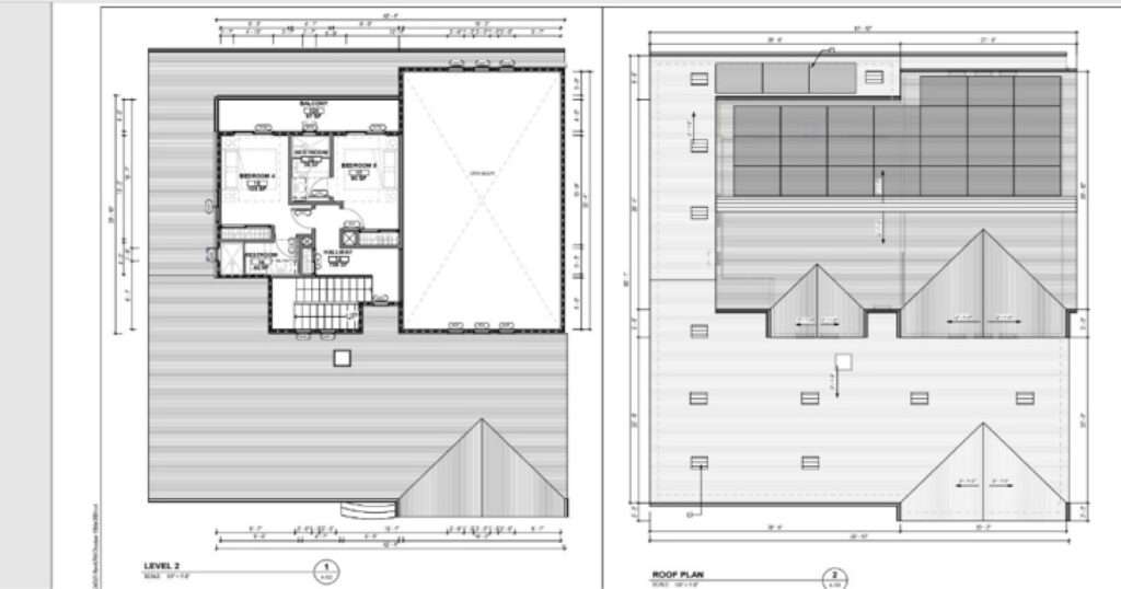
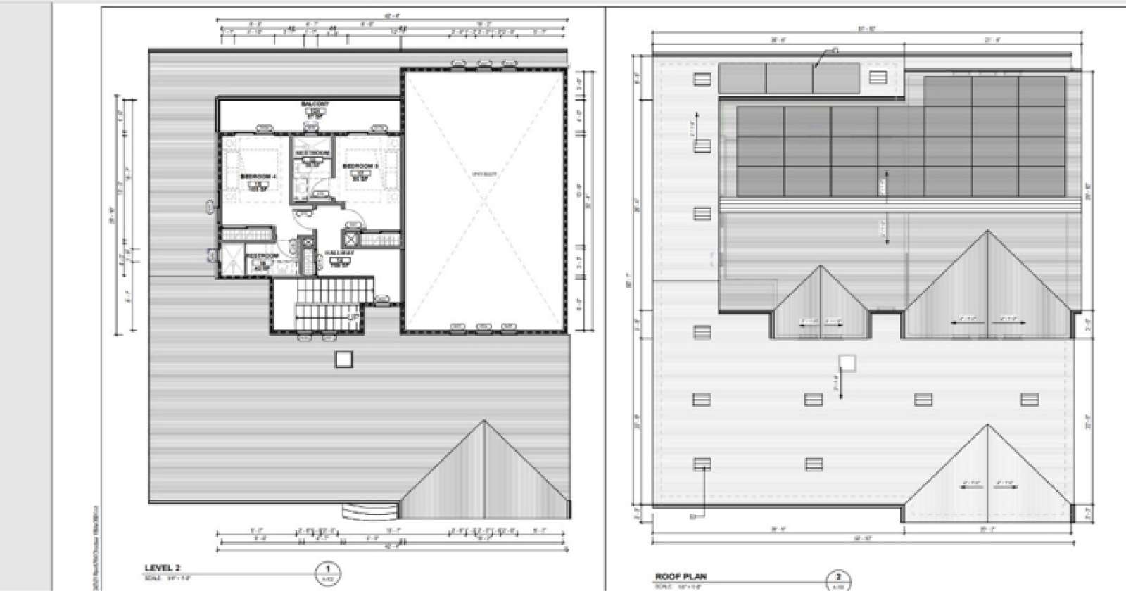
The client initiated a renovation of their house by providing a detailed house plan with dimensions and specific requirements for the new design. The primary objective was to create an updated architectural design while ensuring compliance with local building regulations.
Khodiyar eSolutions
- Modelling Existing Structure:
Developed an accurate model based on the client’s house plan. - Design Options:
Created 2 to 3 compliant design options incorporating client requirements. - Client Feedback:
Presented designs to the client for review and gathered feedback. - Final Submission:
Improved designs based on feedback and submitted the final version for approval.
Benefits to Customers
- Accurate modelling of the existing structure ensured seamless integration with new designs.
- Customized design options allowed the client to explore different renovation approaches.
- Compliance with California building codes reduced the risk of delays during the permit process.
- The client-centric feedback loop resulted in a design that reflected the client’s vision.
- Streamlined approval process facilitated a quicker transition to construction..
