- Garage To Adu Conversion City Permit Project At California
Project Scope
The client requested the renovation of their garage into a one-bedroom house intended for rental purposes. They provided comprehensive details and a CAD plan to guide the design process.
Khodiyar eSolutions
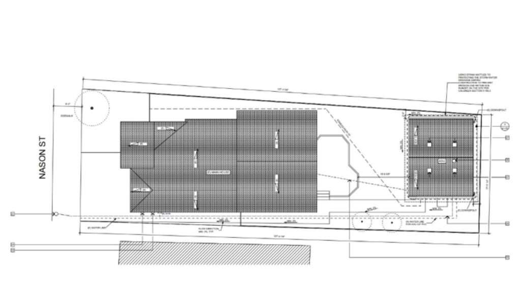
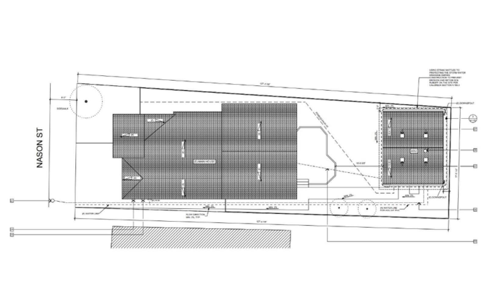
- Existing Model and Site Layout:
Our team prepared an accurate model of the existing garage and created a detailed site layout. - Design Options Development:
We developed 3 design options aligned with the client’s requirements. - Client Presentation and Feedback:
The options were presented to the client in a meeting, where they provided feedback on the designs. - Design Improvements:
Based on the client’s feedback, we refined the designs and submitted the improved version for approval. Submit to client for approval
Benefits to Customers
- Maximized Space: Transformed underused garage into a rental unit, generating additional income.
- Customized Options: Provided 3 tailored designs for the client to choose from.
- Client Collaboration: Regular feedback ensured designs met client expectations.
- Streamlined Approval: Efficient preparation facilitated a quicker transition to construction.
- Structural Integrity: Collaboration with a structural firm ensured safety and compliance
